Продається будинок Київська (№ 22-425-712)
Ціна: 375 000 $

Характеристики
Ціна: | 375 000 $ |
---|---|
№ об'єкта: | 22-425-712 |
Тип: | будинок |
Поверхів: | 2 |
Спалень: | 4 |
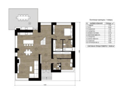
Площа будинку: | 263 м2 |
Ділянка: | 8 сот |
Адреса: Київська
КМ Crystal Forest Планування: чотири затишні спальні, чотири санвузли, велика кухня-гостина та тераса. В будинку для Вашої зручності передбачені чотири гардероби та технічне приміщення. В будинку: • побудований з червоної цегли • утеплений мінеральною ватою • підведені комунікації: вода, електрика, газ, каналізація Септік 10 куб,переливний • алюмінієві енергозберігаючі вікна • фасад (вентильований з керамограніту) Дах утеплен мін вата 250 см ,стяжка,та мембрана Sika • якісні вхідні двері з терморозривом Біля будинку: • ділянка – 8 соток • доглянута територія з облагородженою ділянкою, є озеленення • зроблено вимощення навколо будинку • встановлений паркан Комунікації: • електрика 10кВт 3 фази • септик 10 куб.м. Газ к будинку. Будинок знаходиться на території закритого містечка, який налічує всього 14 будинків. Має власну зону барбекю, басейн, дитячий та спортивний майданчик, сосновий ліс біля Вашого будинку. Котеджне містечко знаходиться під охороною та відеонаглядом 24/7, та має невеликі комунальні платежі. Розвинена інфраструктура. Котедж розташований в 5 хвилинах від зупинки транспорту, аптека, аутлет 'Мануфактура', відділення банку, банкомат, відділення пошти, дитячий майданчик, дитячий садок, кавярні, кінотеатр, театр, лікарня, ліс, магазини, метро ( 10-20хв ), парк, зелена зона, фітнес-клуб, школа, все що необхідно сучасній людині для комфортного життя..
Відстань до найближчого міста: до 10 км.;
Кількість кімнат: 4;
Тип будинку: Котедж;
Рік побудови u002F здачі: Після 2015;
Тип стін: Цегляний;
Зовнішнє утеплення стін: Мінеральна вата;
Тип покрівлі: Інше;
Cанвузол: 2 і більше;
Комфорт: Альтанка, мангал, Відеоспостереження, Автоматичні ворота, Огорожа, Охорона території, Сигналізація, Басейн, Тераса;
Комунікації: Асфальтована дорога, Центральна каналізація, Електрика, Газ, Каналізація септик, Центральний водопровід;
Інфраструктура (до 500 метрів): Відділення банку, банкомат, Аптека, Лікарня, поліклініка, Дитячий садок, Ринок, Метро, Парк, зелена зона, Дитячий майданчик, Відділення пошти, Ресторан, кафе, Школа, Магазин, кіоск, Зупинка транспорту;
Ландшафт (до 1 км.): Ліс, Парк, Річка;